• Biuro w Berlinie
  • realizacja 2017
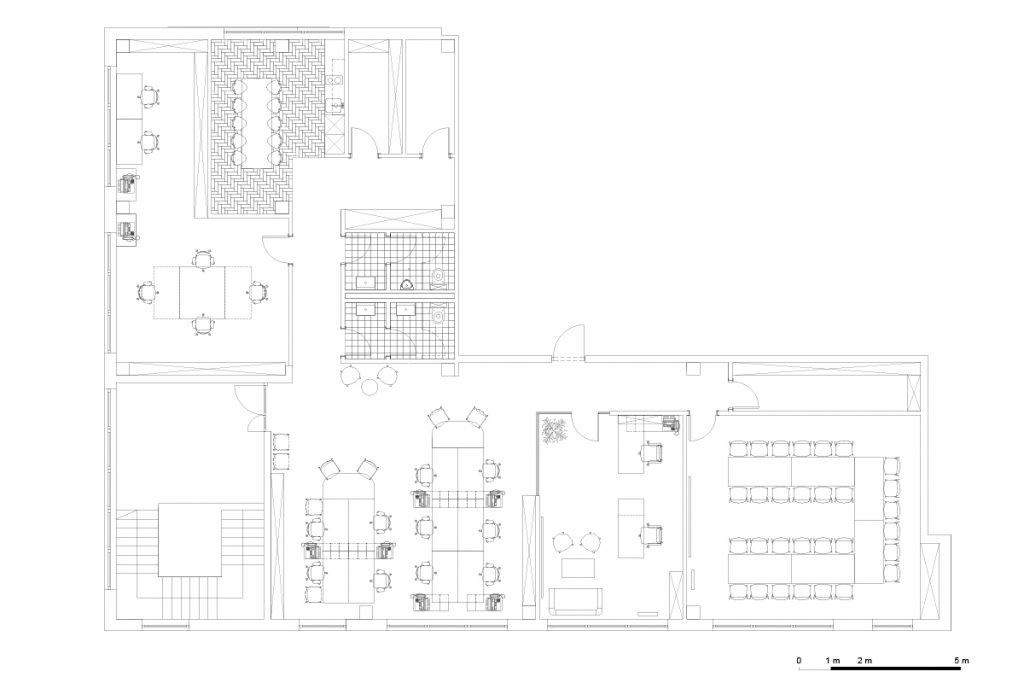
  • powierzchnia - 270 mkw
  • Wnętrze biura w Berlinie dla firmy specjalizującej się w produkcji metalowych okładzin elewacyjnych i dachowych. Materiały nawiązujące do działalności firmy zostały wykorzystane, w takich elementach jak sufit podwieszany, fronty szafek, lampy i uchwyty.
Biuro w Berlinie
Biuro w Berlinie
Biuro w Berlinie
Biuro w Berlinie

Biuro w Berlinie
Biuro w Berlinie
Biuro w Berlinie
Biuro w Berlinie

Biuro w Berlinie
Biuro w Berlinie
Biuro w Berlinie
Biuro w Berlinie
Biuro w Berlinie
Biuro w Berlinie

Biuro w Berlinie
Biuro w Berlinie