• Carmnik Kantyna
  • realizacja 2015
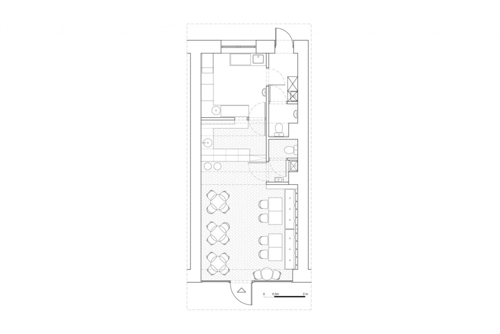
  • Projekt stacjonarnego lokalu zrealizowany dla naszych dobrych kolegów z Carmnika - znanego trójmiejskiego food truck'a specjalizującego się w domowych burgerach i kanapkach. Ideą było nawiązanie do charakterystycznej stylistyki marki i jednoczesne rozszerzenie palety użytych środków, by podkreślić większy zakres usług stacjonarnego punktu. Materiałem przewodnim i wspólnym mianownikiem lokalu i food truck’a jest sklejka sosnowa, która we wnętrzu została użyta w różnych formach. Dodatkowo wprowadzone zostały intensywne kolory zieleni i bordo. Zdecydowaliśmy się na przełamanie surowej stylistyki wnętrza wprowadzając elegancki i subtelny mosiądz.
Carmnik Kantyna

Carmnik Kantyna
Carmnik Kantyna
Carmnik Kantyna
Carmnik Kantyna
Carmnik Kantyna

Carmnik Kantyna
Carmnik Kantyna
Carmnik Kantyna

Carmnik Kantyna
Carmnik Kantyna

Carmnik Kantyna
Carmnik Kantyna

Carmnik Kantyna
Carmnik Kantyna

Carmnik Kantyna
Carmnik Kantyna
Carmnik Kantyna

Carmnik Kantyna
Carmnik Kantyna

Carmnik Kantyna
Carmnik Kantyna