• ALTHAUS
  • realizacja 2012
  • współpraca autorska - Filip Kozarski
  • zdjęcia - Tom Kurek
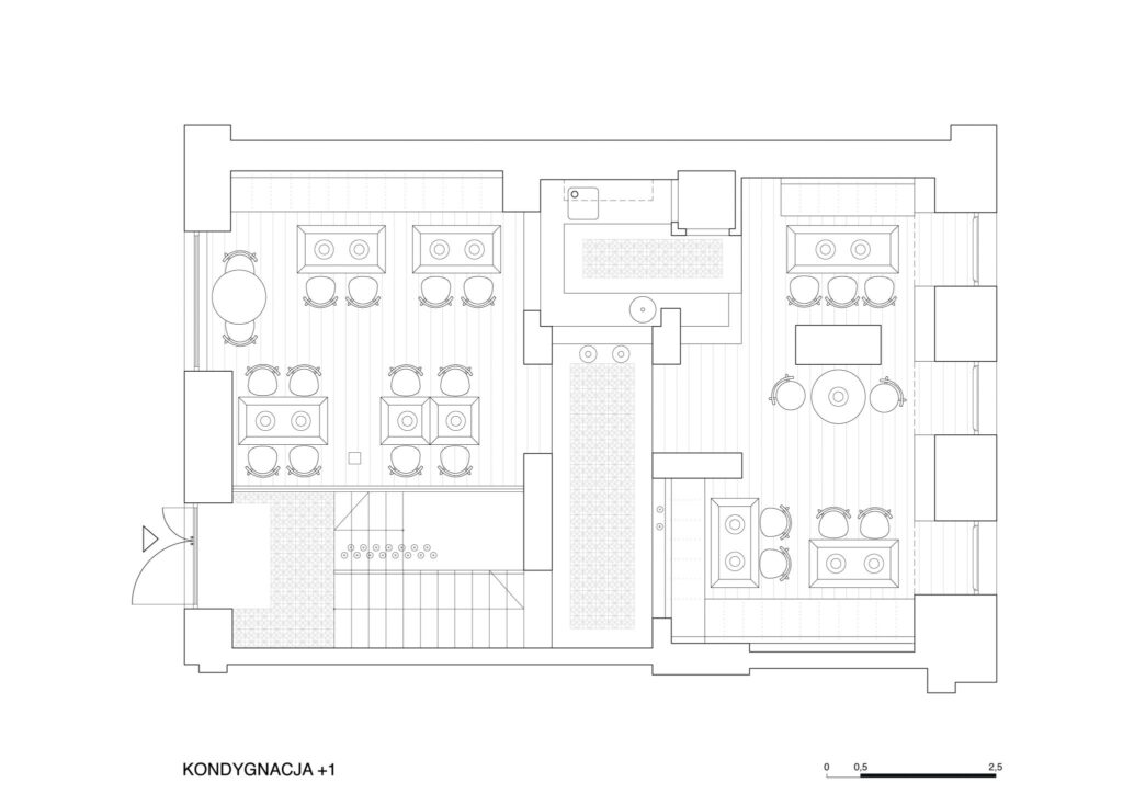
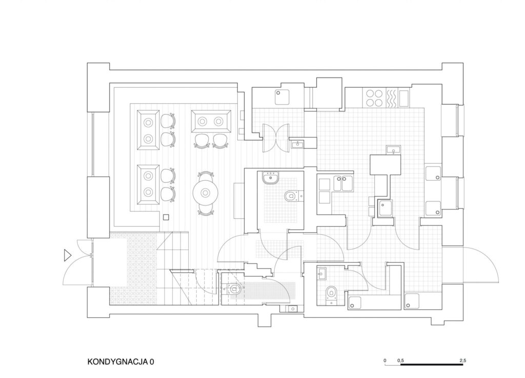
  • Althaus to restauracja bawarska mieszcząca się w samym sercu Gdyni przy ul. Świętojańskiej. Przestronne witryny odkrywają wnętrze przechodniom natomiast gościom restauracji ukazują życie ruchliwej ulicy z nieco innej perspektywy. Restauracja serwuje dania tradycyjnej kuchni bawarskiej a klimat południowych Niemiec został subtelnie wydobyty poprzez zastosowanie materiałów nawiązujących do tradycji produkcji piwa, stąd złocisty kolor dębu, ciemna, butelkowa zieleń oraz miedź przewijająca się w elementach dekoracyjnych takich jak mozaiki, żyrandol oraz lampy. W każdej z sal panuje nieco inna atmosfera: na dolnej kondygnacji dominuje kombinacja czarno-białych i brązowo-białych krowich skór, którymi obite są loże i krzesła, dodatkowym elementem wykończenia są deski dębowe, olejowane lub emaliowane na kolor biały. Centrum górnej kondygnacji stanowi bar i stół kelnerski, wyłożony panelowaniem w kolorze butelkowym. Wokół baru zaprojektowano dwie sale, w których dominuje naturalny dąb, malowana cegła i loże wykończone ciemnozielonym aksamitem.
ALTHAUS
ALTHAUS
ALTHAUS
ALTHAUS

ALTHAUS
ALTHAUS
ALTHAUS
ALTHAUS
ALTHAUS

ALTHAUS
ALTHAUS
ALTHAUS
ALTHAUS
ALTHAUS

ALTHAUS
ALTHAUS
ALTHAUS

ALTHAUS
ALTHAUS

ALTHAUS

ALTHAUS
ALTHAUS
ALTHAUS
ALTHAUS

ALTHAUS
ALTHAUS

ALTHAUS
ALTHAUS

ALTHAUS
ALTHAUS

ALTHAUS
ALTHAUS
ALTHAUS