
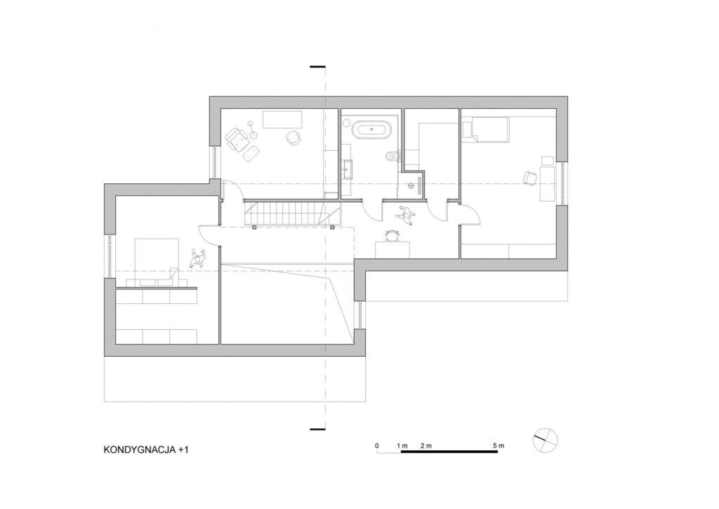
Wiosną tego roku zostaliśmy zaproszeni do zaprojektowania domu jednorodzinnego zlokalizowanego w otoczeniu natury, wśród kaszubskich lasów i wzgórz. Wytyczne inwestora - budynek o współczesnym charakterze wpasowany w wiejski krajobraz, do tego ganek oddzielony od tarasu i tradycyjna czerwona cegła. Ta wyjątkowa działka miała jednak dwa główne wyzwania- spore nachylenie terenu oraz wjazd od strony południowej. Zaproponowaliśmy ukształtowanie zabudowy w formie dwóch przesuniętych względem siebie brył, które podążają za topografią terenu i umożliwiają częściową ekspozycję strefy dziennej na stronę południową. Ten zabieg pozwolił dodatkowo uzyskać wyodrębnioną zadaszoną strefę wejściową, która spełnia funkcję współczesnego ganka. Zewnętrzne tarasy z bruku ceglanego, zestawione z elewacją z rudej cegły, tworzą jednorodną podstawę i scalają budynek wizualnie.