• DOM OJ
  • dom dwurodzinny w Gdyni
  • projekt 2013
  • współpraca autorska - Filip Kozarski
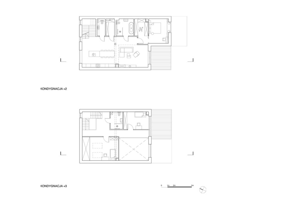
  • Projekt przebudowy i nadbudowy domu jednorodzinnego na budynek o dwóch lokalach mieszkalnych. Nadrzędnym zadaniem projektowym było stworzenie dwóch niezależnych, wygodnych i przestronnych mieszkań dla wielopokoleniowej rodziny zachowując jednocześnie trudne wymagania miejscowego planu. Głównym oczekiwaniem inwestorów był bliski kontakt dolnego mieszkania z ogrodem. Mieści się ono na dwóch najniższych poziomach i posiada bezpośrednie połączenie z przestrzenią zewnętrzną z obu kondygnacji. Drugie mieszkanie zlokalizowane głównie na ostatnich dwóch kondygnacjach to otwarte i doświetlone przestrzenie z dużymi przeszkleniami w części dziennej.
DOM OJ

DOM OJ
DOM OJ
DOM OJ
DOM OJ
DOM OJ