
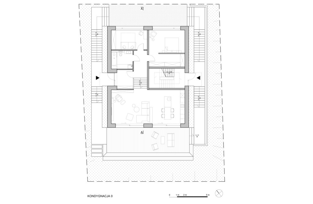
Projekt domu dwurodzinnego w gdańskim Suchaninie. Obiekt zlokalizowany jest w urokliwej części dzielnicy - zielonej dolinie o stromych zboczach i nieregularnej niskiej zabudowie. To właśnie nietypowe, niemal górskie ukształtowanie terenu miało decydujący wpływ na ostateczną formę budynku. W projekcie udało się wykorzystać strome nachylenie działki wytwarzając kameralny ogród dostępny ze strefy dziennej i odrębną strefę podjazdu na poziomie -1. Prostą bryłę wykończoną w zacieranym tynku, rozcinają nowoczesne wielkoformatowe okna aluminiowe kadrujące widoki na okoliczną zieleń. W przestrzeni poddasza zaprojektowano dodatkowy taras ukryty w bryle dachu.