• Fanaberia
  • realizacja 2016
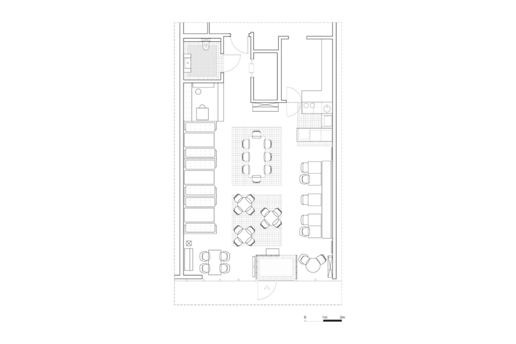
  • Projekt wnętrz naleśnikarni zlokalizowanej w Sopocie. Ze względu na typowo dzienny charakter lokalu oraz serwowane menu, wnętrze zostało zaprojektowane w lekkim, pogodnym klimacie. Całość utrzymana jest w jasnych odcieniach złamanej bieli z dodatkiem wyrazistych akcentów kolorystycznych w postaci granatowych i rudych elementów. We wnętrzu znalazły się również detale swobodnie nawiązujące do nadmorskiego klimatu miasta. Charakter sopockiego kurortu został oddany w morskich tonacjach barwnych i bielonym drewnie a jednym z przewodnich materiałów stał się pleciony rattan, który jest odniesieniem do popularnych kiedyś plażowych koszy.
Fanaberia
Fanaberia
Fanaberia
Fanaberia
Fanaberia
Fanaberia
Fanaberia
Fanaberia
Fanaberia

Fanaberia
Fanaberia

Fanaberia
Fanaberia
Fanaberia
Fanaberia
Fanaberia
Fanaberia
Fanaberia
Fanaberia
Fanaberia