• ALTHAUS
  • completed - 2012
  • co-author - Filip Kozarski
  • photos - Tom Kurek
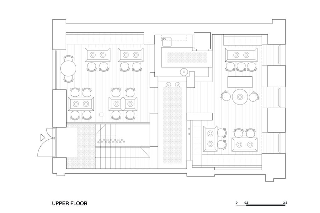
  • Althaus is a Bavarian restaurant situated in the centre of Gdynia, Poland. Large facade windows expose the interior to the pedestrians whereas the restaurants guests can experience the street life from a different level. The restaurant serves traditional Bavarian cuisine. Therefore, the southern Germany vibe was exposed subtly by using materials such as natural, golden oak, bottle green and copper which appears in decorative elements such as lamps, mosaic and chandelier, all of which refer to traditional beer production. There is a slightly different atmosphere in every room: combination of calfskins and white painted wood is prevailing on the ground floor. In the centre of the upper floor there is a bar and a buffet covered in dark green paneling. There are two rooms surrounding the bar in which natural oak, white painted brick and dark green velvet, covering upholstered seats, are dominating materials.
ALTHAUS
ALTHAUS
ALTHAUS
ALTHAUS

ALTHAUS
ALTHAUS
ALTHAUS
ALTHAUS
ALTHAUS

ALTHAUS
ALTHAUS
ALTHAUS
ALTHAUS
ALTHAUS

ALTHAUS
ALTHAUS
ALTHAUS

ALTHAUS
ALTHAUS

ALTHAUS

ALTHAUS
ALTHAUS
ALTHAUS
ALTHAUS

ALTHAUS
ALTHAUS

ALTHAUS
ALTHAUS

ALTHAUS
ALTHAUS

ALTHAUS
ALTHAUS
ALTHAUS