Projekty
Wnętrza
Architektura
PL
EN
Info
Publikacje
Projekty
Wnętrza
Architektura
Publikacje
Info
PL
EN
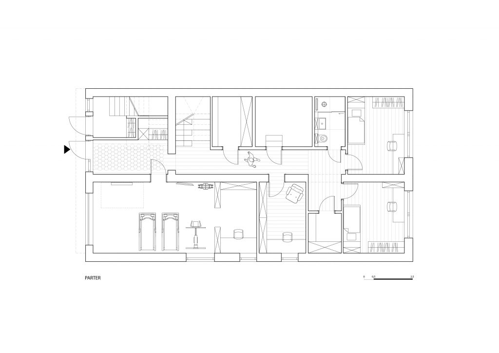
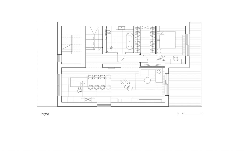
APARTAMENT GJ
realizacja 2017
zdjęcia - Tom Kurek
DOM ST
APARTAMENT OL
DOM KZ
Przystań Widna
Opacka
Sakoceno
Apartament KN
Manioca
DOM JK
Łeba - hotel
Nadmorski Dwór
Apartament WP
Kamienica
Retro
DOM SK
No.5
Nadmorski Park
Apartamenty OG
Nowe Orłowo
Biuro w Berlinie
Wejherowo
Wejherowo - Hotel i Restauracja
Apartament KS
Apartament GJ
Bursztynowa
Fanaberia
Rivus
Marszewo
Główna Osobowa
Carmnik Kantyna
Izba Pamięci
Althaus
Spiżarnia
Dom OJ
Oranżadziarnia
Apartament SW
Kropka
UP