• Carmnik Kantyna
  • completed - 2015
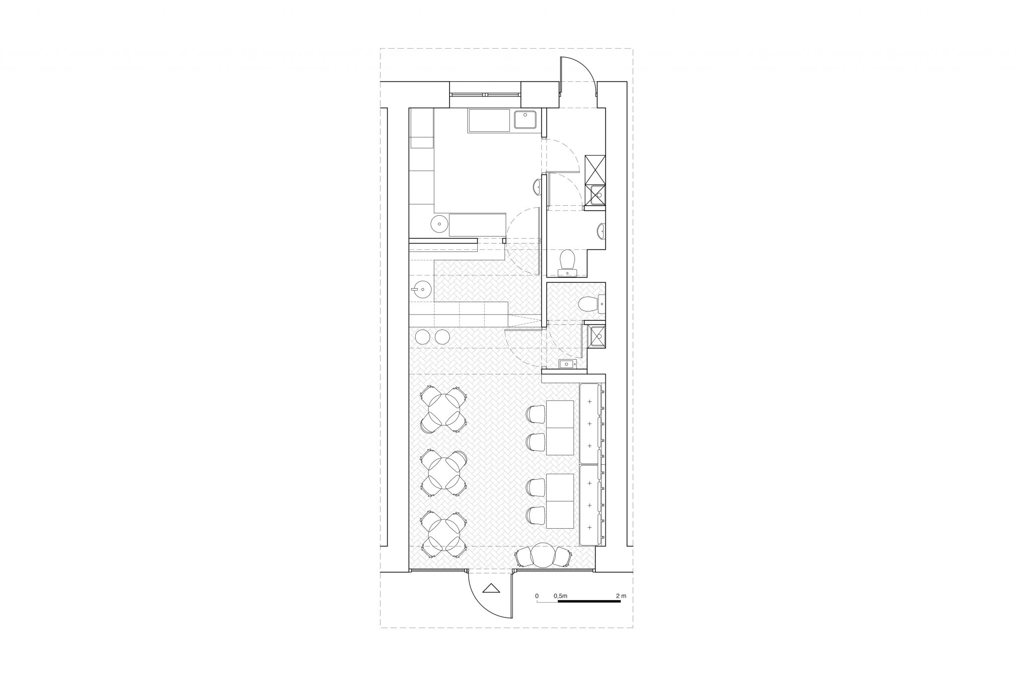
  • We had a pleasure to work with our friends from Carmnik, a well known burger foodtruck in tri-city area , on a design of their first stationary venue. The main idea was to refer to the characteristic style of the existing brand and to add some fresh design values. Pine plywood is a leading interior material and a reference to the foodtruck finishing. Intense green and maroon were introduced as an additional accent. We decided to break the raw style of the interior and juxtapose it with subtle and elegant brass.
Carmnik Kantyna

Carmnik Kantyna
Carmnik Kantyna
Carmnik Kantyna
Carmnik Kantyna
Carmnik Kantyna

Carmnik Kantyna
Carmnik Kantyna
Carmnik Kantyna

Carmnik Kantyna
Carmnik Kantyna

Carmnik Kantyna
Carmnik Kantyna

Carmnik Kantyna
Carmnik Kantyna

Carmnik Kantyna
Carmnik Kantyna
Carmnik Kantyna

Carmnik Kantyna
Carmnik Kantyna

Carmnik Kantyna
Carmnik Kantyna