
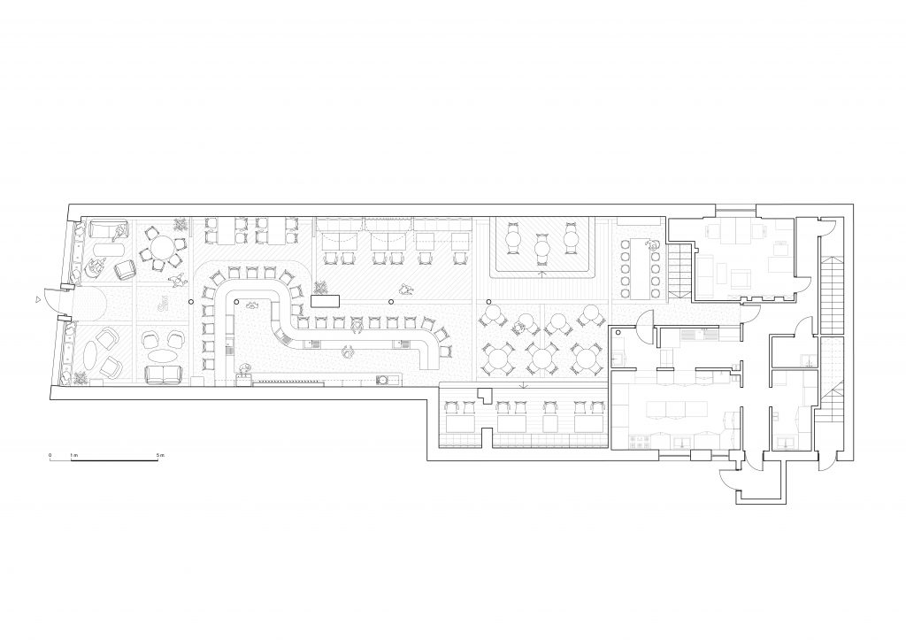
No. 5 is a multitap bar located in Sopot serving a wide selection of craft beer and tex-mex cuisine. In the heart of the joint you will find an 18-meter long bar with a monolith concrete countertop where customers can try different kinds of regional beers served on 20 taps. While the bar is located in the center, in the front you will find a daytime area with comfy seating and lots of sunlight, which functions as a café. In the back part of the bar you will find tables with different kinds of seating and a stage for occasional gigs and stand-up shows.
The visual language was based on a juxtaposition of the existing industrial elements of the building with a more elegant vibe of terazzo flooring, upholstered furniture and dark-tinted oak wood. Material palette is complemented by raw carbon steel sheets with a distinguished natural pattern that was used as a cladding of the bar and one of the walls. The existing steel structure was brought out by using a deep petrol blue colour. A repetitive geometric motif of a circle within a square was implemented in various details such as transparent dividers made of cut ceramic blocks. In order to fully use the potential of a long and narrow interior, we designed a new, wide double hung storefront window and a massive skylight in the back part. The project included many individually designed details such as lamps, several types of tables and various forms of implementing the logo such as poured terazzo and wood incrustation.