• KN Apartment
  • completed 2022
  • photos - Oni Studio
KN Apartment

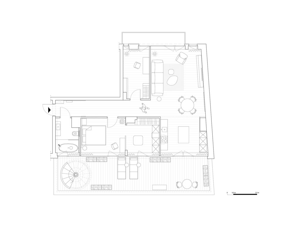
We were invited to design the interiors of this penthouse in Gdynia by Joanna and Szymon - a couple of young professionals leading a busy life, for whom this was to be a place of rest and relaxation from everyday life. The investors value the highest quality in life, so they wanted the interior to stand out with elegance and original details based on high-quality natural materials. The dwelling is located in the port area of the city, at the meeting point of the waterfront and downtown and occupies the top floor of a four-storey residential building.

KN Apartment
KN Apartment
KN Apartment
KN Apartment

Many individually designed details are featured, including bookcases with stained glass elements, stone and wooden tables or repetitive geometric forms finished in walnut and mosaic. The interiors are complemented by works of art individually prepared for this space. The paintings and bas-relief were created by Tricity-based artist Aleksandra Józefów.

Planning the functional layout, we created two main zones - the night zone, consisting of a master bedroom combined with a dressing room, and the day zone, which opens up views on both sides of the building. We have also taken advantage of the atypical, linear layout of the flat - large glazing opening onto the terrace along its entire length gives the interiors an unusually large amount of daylight and allows for intensive use of the outdoor spaces. On the roof, there is wellness terrace an exceptional view of the harbour.

KN Apartment
KN Apartment
KN Apartment
KN Apartment
KN Apartment

We proposed a palette of base materials immersed in soft tones of sand colours and off-whites, which stand out with strong textures. Whitewashed oak wood on the floor, textured plaster walls, white quartzite and sandy ceramic mosaics create an atmosphere of tranquillity and seaside serenity. This soft palette is broken up with walnut wood accents in the kitchen and dressing room, topped off with an accented black dining table as the heart of the flat.

KN Apartment
KN Apartment

KN Apartment
KN Apartment
KN Apartment
KN Apartment
KN Apartment
KN Apartment

KN Apartment
KN Apartment
KN Apartment
KN Apartment
KN Apartment